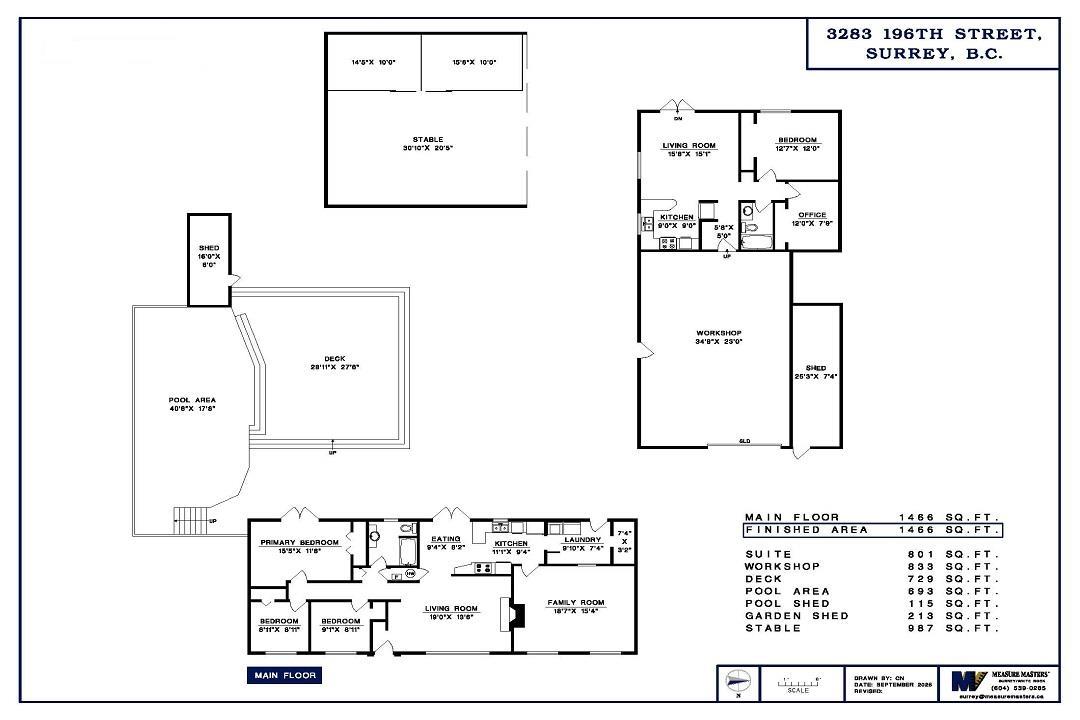
3283 196 STREETSurrey, BC V3Z1A9




Mortgage Calculator
Monthly Payment (Est.)
$16,197One Acre Rural living in the heart of Campbell Heights Business Park District in Surrey. Three bedroom Rancher 100 amp service-separate meter-1466 SF Home has central A/C. Roof 30 yr asphalt is 10 years New* Large Detached Heated Garage @ 833 SF Shop w/ 200 amp service with Mezzanine 14 ' door(access 2nd showings).Vacant authorized suite 801 SF. 2 Stall Barn( 1000 SF) w/ Metal roof 40'5/30'10 W/ hay storage .Property is fully Fenced w/ Security Cameras & Large Dogs on Property. All Showings the Listing Agent must be Present. Ample notice Please for access .Qualified Buyers Only Please. Above ground Pool 15'/30' Patios and Decks 1400 SF School Catchments:*K-7 Pacific Heights Elementary and 8-12 Grandview Secondary .A Crushed Asphalt Large Parking area inside security fence for trucks. Digital Brochure available and floor plan in Picture file on MLS* Virtual staging implemented in some interior pics .Drone Shots show proximity of neighboring Warehouse developments west. Property depth 461'/Frontage 94' (id:31684)
| 17 hours ago | Listing updated with changes from the MLS® | |
| 17 hours ago | Price changed to $3,550,000 | |
| 2 months ago | Listing first seen on site |
The trademarks MLS®, Multiple Listing Service® and the associated logos are owned by The Canadian Real Estate Association (CREA) and identify the quality of services provided by real estate professionals who are members of CREA. Used under license.
The trademarks REALTOR®, REALTORS®, and the REALTOR® logo are controlled by The Canadian Real Estate Association (CREA) and identify real estate professionals who are members of CREA. These trademarks are owned or controlled by The Canadian Real Estate Association (CREA) and identify real estate professionals who are members of CREA (REALTOR®) and/or the quality of services they provide (MLS®).
This REALTOR.ca listing content is owned and licensed by REALTOR® members of The Canadian Real Estate Association.
Did you know? You can invite friends and family to your search. They can join your search, rate and discuss listings with you.